When I started my career hand drafting ruled the day. While CADD programs existed for the most part they were turnkey systems available only to large architectural and engineering firms with deep pockets for equipment, software, and training. Far beyond the reach of mere freelance set designers.

Hand Drafting for STARGATE SG-1 - THE TOMB

Hand Drafting for STARGATE SG-1 - THE TOMB

Hand Drafting for STARGATE SG-1 - THE TOMB

As personal computers became more widespread and gained in power it began to become feasible to integrate them into my personal workflow. I started using the computer mainly for modelling sets, which were then output as rough line drawings that I traced over by hand and added details to. CADD drawing was still not widely in use at this point in the film industry.

Hybrid CADD/Hand Drafting for STARGATE SG-1 - SERPENT'S VENOM

Hybrid CADD/Hand Drafting for STARGATE SG-1 - SERPENT'S VENOM

And then, seemingly overnight (though it was in fact over five or six years) everything shifted. Personal computers had become ubiquitous and a wide range of highly capable CADD programs became accessible and inexpensive enough for widespread adoption. In addition more and more designers were graduating from programs where CADD training was now the default. Eventually during a short stint on Stargate Universe I made the shift myself. Oddly enough the first designs that I did completely in CADD were also my last. I began shifting my focus more towards visualization, rendering, and illustration.

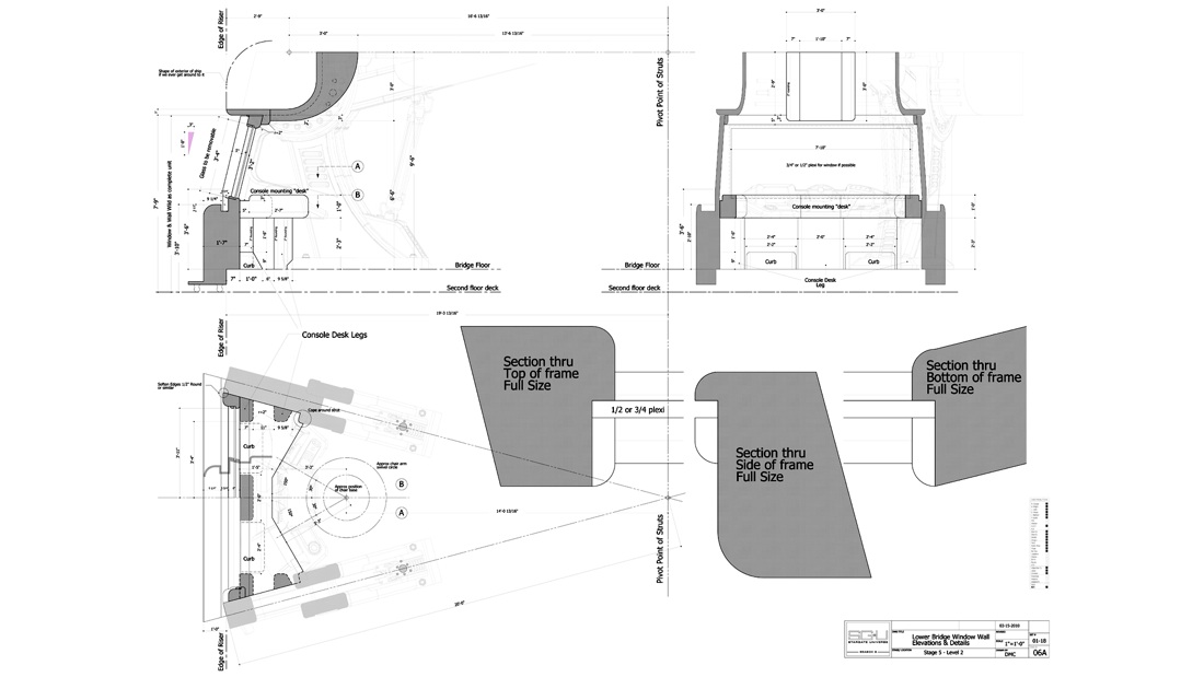
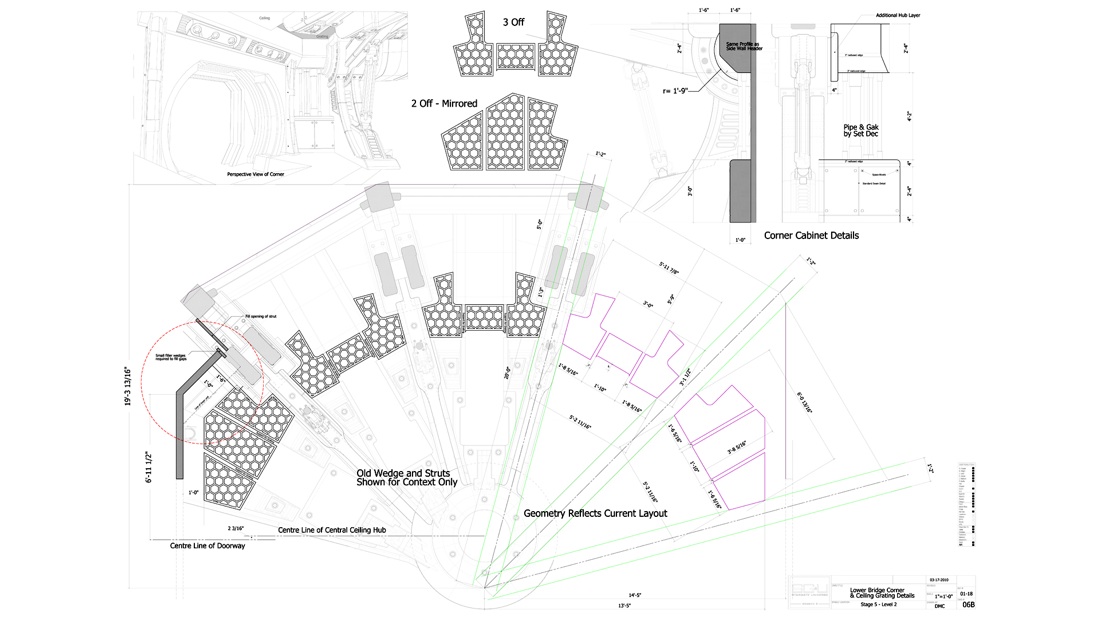
CADD Drawing for STARGATE UNIVERSE

CADD Drawing for STARGATE UNIVERSE

CADD Drawing for STARGATE UNIVERSE

CADD Drawing for STARGATE UNIVERSE

CADD Drawing for STARGATE UNIVERSE

CADD Drawing for STARGATE UNIVERSE

CADD Drawing for STARGATE UNIVERSE

CADD Drawing for STARGATE UNIVERSE

CADD Drawing for STARGATE UNIVERSE

CADD Drawing for STARGATE UNIVERSE

Green Hosting Badge